Etobicoke Backyard Transformation – Hartfield Crt
Status
Under Construction
Project Type
Office
Project Area
26,346.74 Sq. Ft.
Commencement date
June, 2025
Price Range
$3500 - $5500

Etobicoke Backyard Transformation – Hartfield Crt
When the homeowners of Hartfield Crt in Etobicoke reached out to us through RedNote, they were facing a major challenge: their backyard was failing. With a steep slope, a deteriorating retaining wall, and an irregularly shaped lot, the space felt unsafe and unusable. Outdated hardscaping and overgrown plantings added to the frustration, leaving very little room for their growing family to enjoy. Their dream was simple — create a safe, functional, and beautiful outdoor environment — but the project needed to stay within a defined budget.
Challenges we faced
The property presented several obstacles. The slope limited usable areas, the retaining wall was unsafe, and the irregular lot made designing a balanced layout difficult. Safety was the top priority, followed closely by maximizing space for children to play and incorporating multiple outdoor zones such as a BBQ deck, raised patio, and family gathering areas.
Our Design Approach
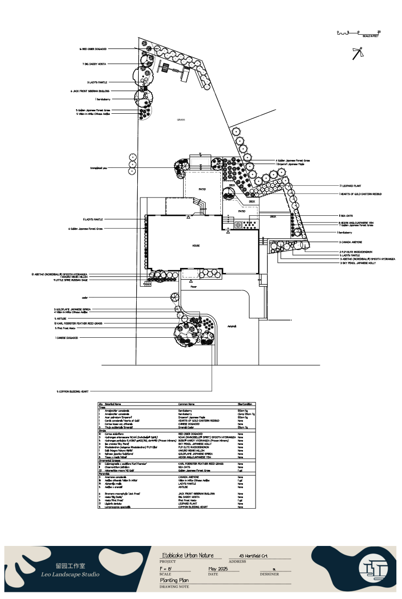
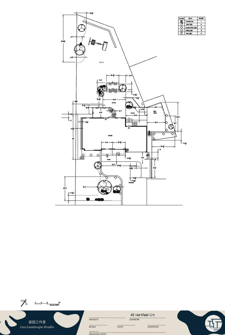
Over four weeks, Leo Landscape Studio developed a complete design package valued at $3,500. Using 2D concepts and 3D renderings, we worked with the homeowners to visualize their new backyard. The design focused on cost-effective solutions, including replacing the retaining wall with decking to improve safety and reduce expenses. We also planned hardscape layouts, planting schemes, and lighting design, with one revision included to fine-tune the final presentation.
Construction and Materials
Construction, carried out in partnership with Dai’s Landscaping, lasted three weeks. To stay within budget, we selected durable yet affordable materials:
Permacon Brooklyn Paver (Rosewood) for walkways
Permacon Orion and Vario Walls (Beige) for structure and balance
Permacon Melville Paver (Silverstone + Beige) for patios
Pressure-treated decking to create safe circulation and a BBQ platform
The planting design brought the landscape to life with a diverse mix of textures and colors, including Hydrangea ‘Bobo’, Russian Sage, Japanese Forest Grass, Eastern Redbud, Serviceberry, and Feather Reed Grass. Together, these plants created year-round interest and a soft transition across the regraded slope.
The Result
The transformation was dramatic. A boardwalk across the slope allowed safe circulation, while the old retaining wall was replaced with decking, instantly making the yard safer and more usable. A raised patio now serves as a central gathering space for dining and entertainment, paired with a dedicated BBQ deck. By regrading the backyard, we unlocked an additional 50% more usable space — a game changer for this family.
Most importantly, the project was delivered on time and on budget, giving the homeowners a functional, modern backyard tailored to their lifestyle. What was once a failing, unsafe yard is now a versatile outdoor space designed for family enjoyment, relaxation, and long-term value.
This Etobicoke project shows how smart design can maximize even the most challenging properties. Whether your space is limited by slopes, size, or layout, Leo Landscape Studio can create a safe and functional landscape that fits your vision and budget. Book your free quote today
Key Details
- Location: Central Business District.
- Total Built-Up Area:350,000 sq. ft.
- Number of Floors: 20, including two underground levels for parking.
- Special Features: Vertical garden facade, collaborative workspaces, and an energy-efficient HVAC system.
- Amenities: Gym, café, daycare, and rooftop event space.
Features & amenities
Boardwalk
Safe boardwalk across slope improves circulation and usability.
Raised Patio
Raised patio creates a central outdoor dining hub.
BBQ Deck
Dedicated BBQ deck designed for cooking and entertaining.
Play Area
Play area provides safe space for growing children.
Multilevel Decking
Multi-level decking maximizes slope and adds function.
Low-Maintenance Planting
Low-maintenance planting ensures beauty with minimal upkeep.
Regraded Slope
Regraded slope unlocks new usable backyard space.
Shade Trees
Shade trees provide comfort, privacy, and seasonal interest.
Gallery
Support email
info@leolandscapestudio.ca
Phone number
(519) 731-4624
Location
The Greater Toronto Area, Ontario.
Leave us a message
Ready to bring your landscape vision to life? At Leo Landscape Studio, we design outdoor spaces with intention and creativity, serving homeowners across Toronto, Mississauga, Oakville, Milton, Burlington, Hamilton, and Etobicoke. Whether you’re planning a full backyard transformation, need 3D design renderings, or want long-term seasonal planning, our team is here to guide you every step of the way.